alt

alt

alt

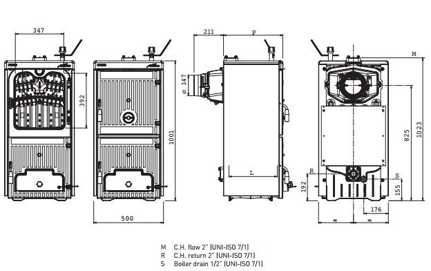
Lisainfot leiad: SIME malmkatlad

SIME Solida EV malmkatlad